1861 Reid School RoadTaylors, SC 29687



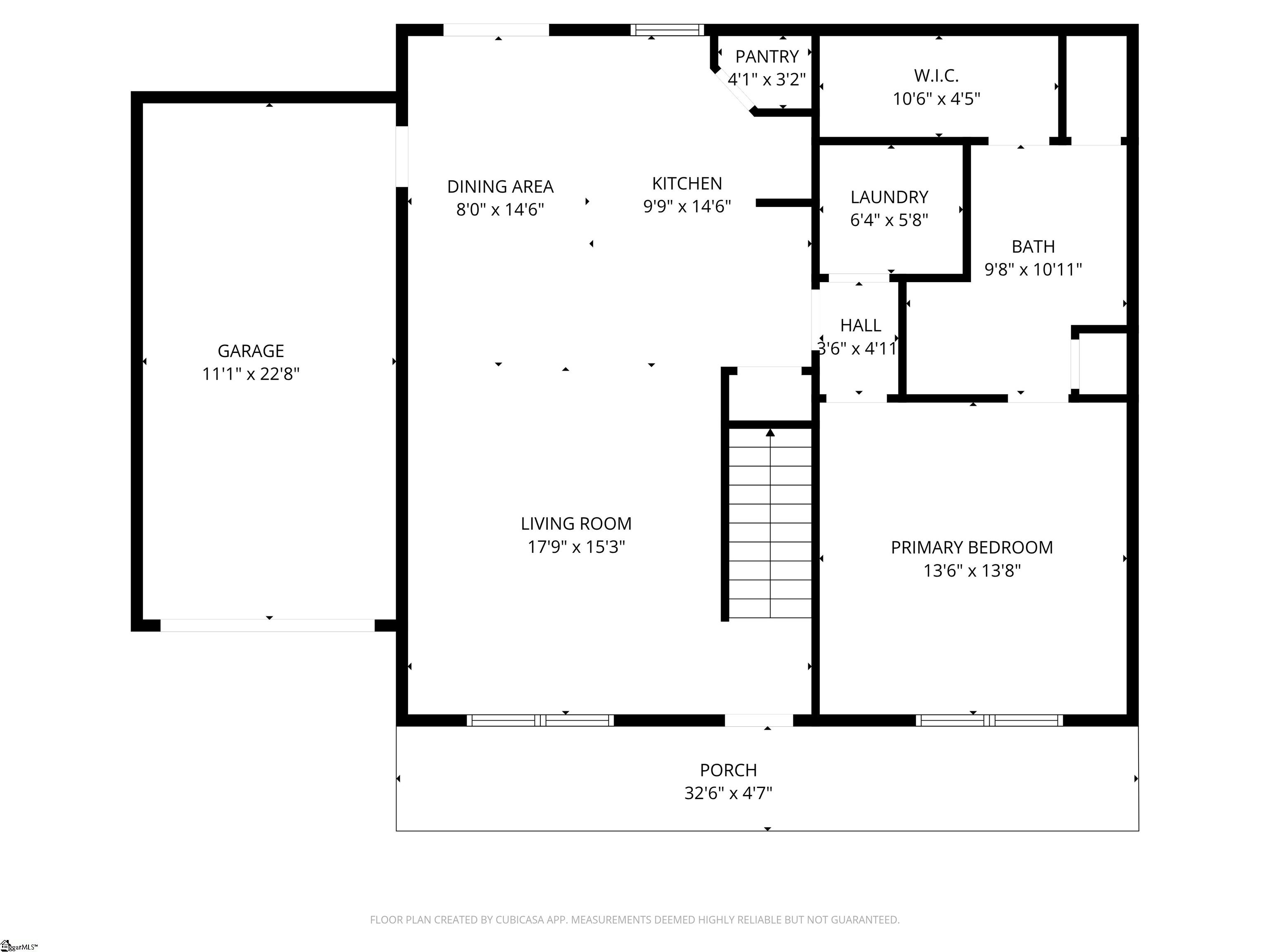
New construction home currently underway in Taylors, located on a spacious 0.47-acre lot in a USDA-eligible area. This Cape Cod–inspired build is approximately six weeks from completion and offers the benefits of modern construction with efficient systems and a functional layout designed for comfortable everyday living. The home is being built with contemporary finishes, energy-efficient features, and thoughtful design, making it an excellent option for buyers looking for a new, low-maintenance home in a growing area. The location provides excellent access throughout the Upstate. Downtown Greenville and Downtown Greer are each approximately 15 minutes away. Hampton Village Shopping Center, featuring Publix, Chick-fil-A, and additional retail and dining, is just 10 minutes away, with even more shopping and restaurant options available in nearby Cherrydale. Pebble Creek Golf Course is close by, and Walmart is within a short 15-minute drive. With Taylors continuing to grow and develop, this property offers both convenience and long-term value. Located in a USDA-eligible area, this home may qualify for zero-down financing for eligible buyers. If you are looking for a modern new build close to Greenville and Greer, this home is a strong opportunity. Reach out today to schedule a walkthrough as construction nears completion.
| yesterday | Listing updated with changes from the MLS® | |
| 2 months ago | Listing first seen on site |
Listing information is provided by Participants of the Greater Greenville Association of Realtors. IDX information is provided exclusively for personal, non-commercial use, and may not be used for any purpose other than to identify prospective properties consumers may be interested in purchasing. Information is deemed reliable but not guaranteed. Copyright 2026, Greater Greenville Association of Realtors.
Last checked: 2026-01-09 08:03 AM UTC

Did you know? You can invite friends and family to your search. They can join your search, rate and discuss listings with you.