1859 Reid School RoadTaylors, SC 29687



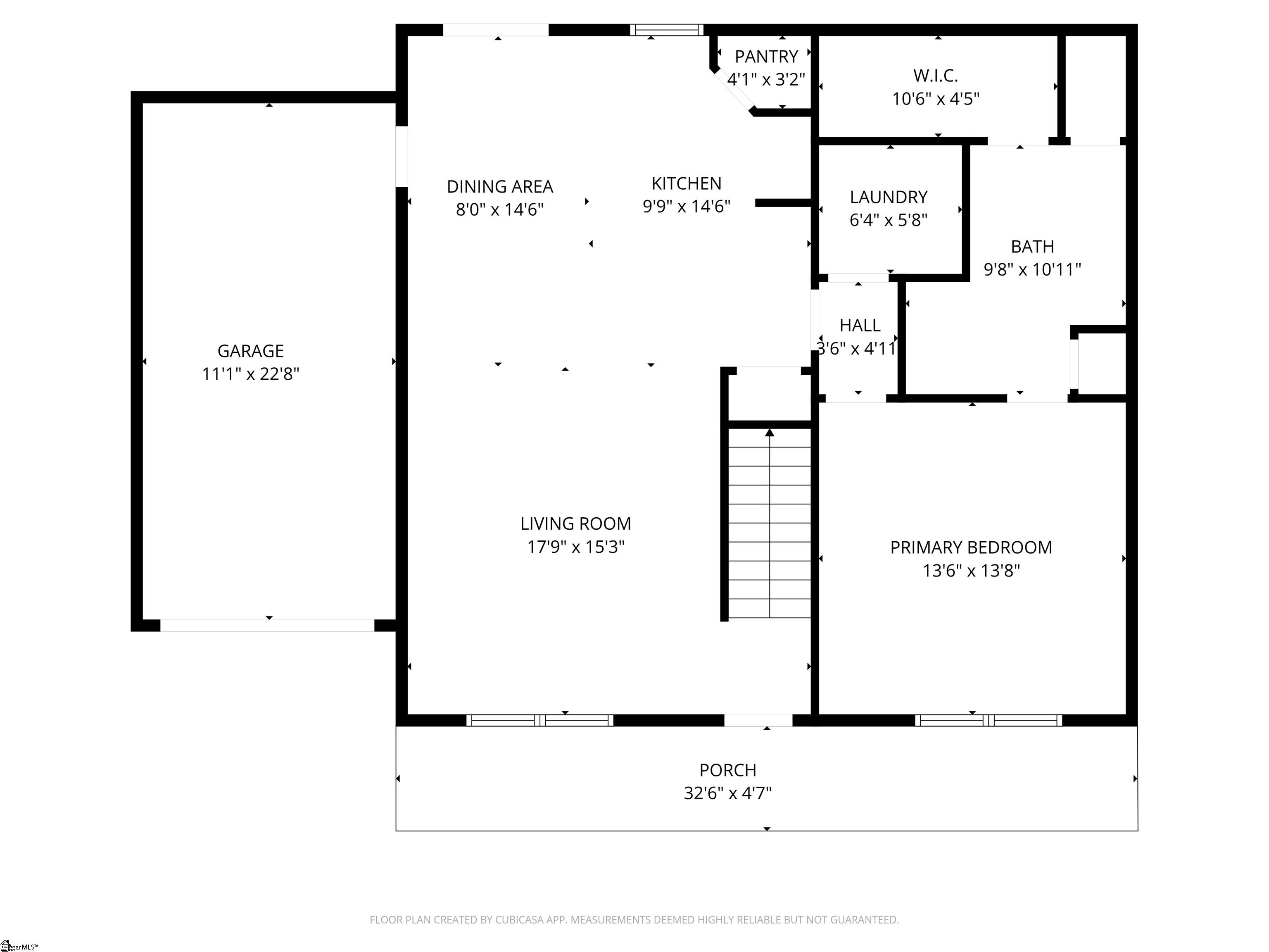
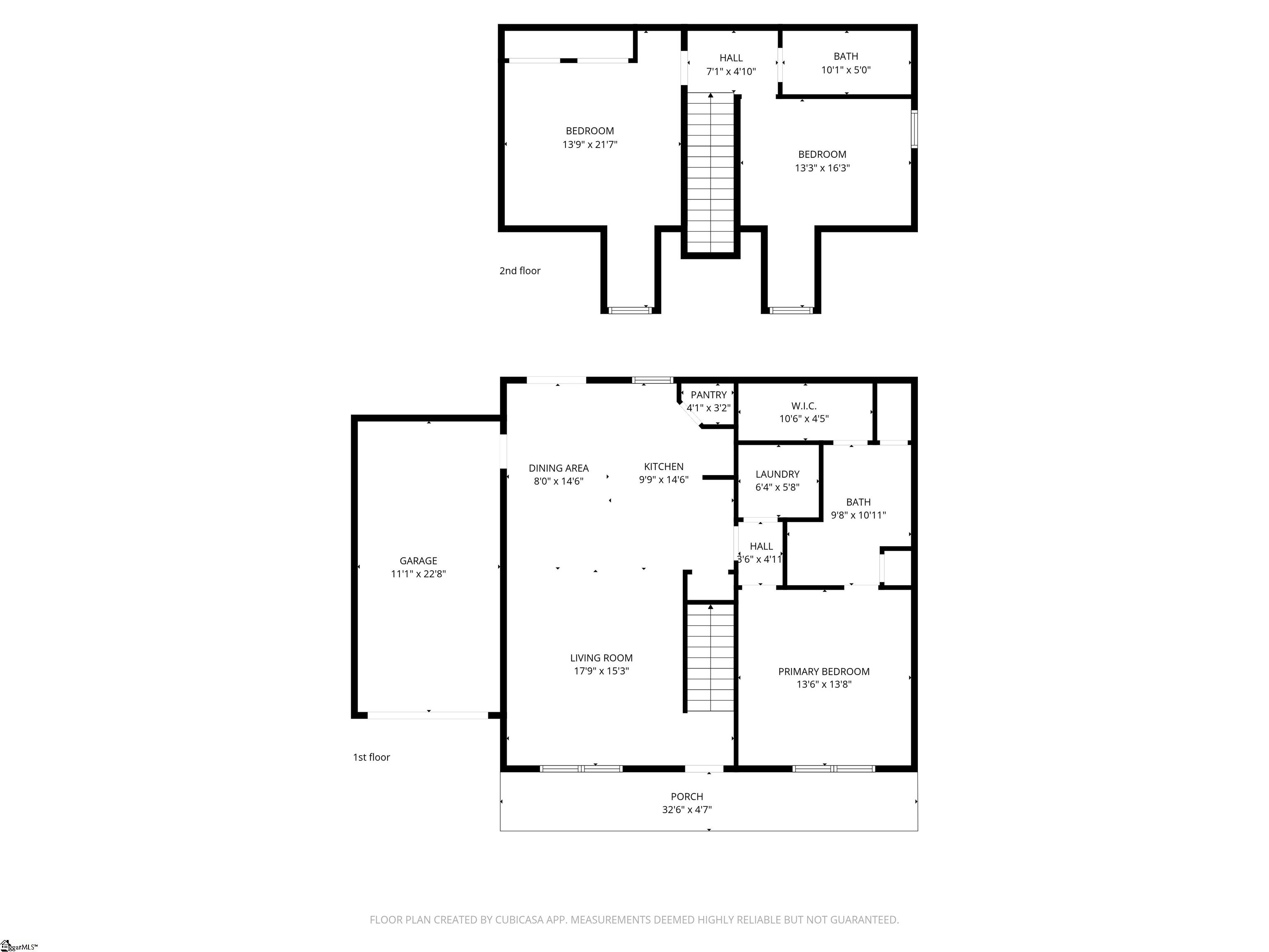
Brand new build in progress in Taylors, located on a 0.35-acre lot in a USDA-eligible area. Currently in the framing stage, this home offers an early opportunity to customize interior finishes and design selections. Contact the listing agent for details on available options and construction timelines. Featuring a Cape Cod–inspired exterior and a modern, functional layout, this home is planned with energy-efficient systems, quality construction, and comfortable everyday living in mind. The location provides excellent convenience throughout the Upstate. Downtown Greenville and Downtown Greer are each approximately 15 minutes away. Hampton Village Shopping Center, featuring Publix, Chick-fil-A, and additional retail and dining, is just 10 minutes away. Additional shopping and restaurants are available nearby in Cherrydale. Pebble Creek Golf Course is close by, and Walmart is within a short 15-minute drive. With Taylors continuing to grow, this property offers strong long-term value in a highly accessible area. Located in a USDA-eligible area, the home may qualify for zero-down financing for eligible buyers. If you have been searching for new construction with the ability to personalize your finishes while staying close to Greenville and Greer, this is a great opportunity. Reach out today for a site visit and build details.
| yesterday | Listing updated with changes from the MLS® | |
| 2 months ago | Listing first seen on site |
Listing information is provided by Participants of the Greater Greenville Association of Realtors. IDX information is provided exclusively for personal, non-commercial use, and may not be used for any purpose other than to identify prospective properties consumers may be interested in purchasing. Information is deemed reliable but not guaranteed. Copyright 2026, Greater Greenville Association of Realtors.
Last checked: 2026-01-09 08:03 AM UTC

Did you know? You can invite friends and family to your search. They can join your search, rate and discuss listings with you.