1810 Reid School RoadTaylors, SC 29687



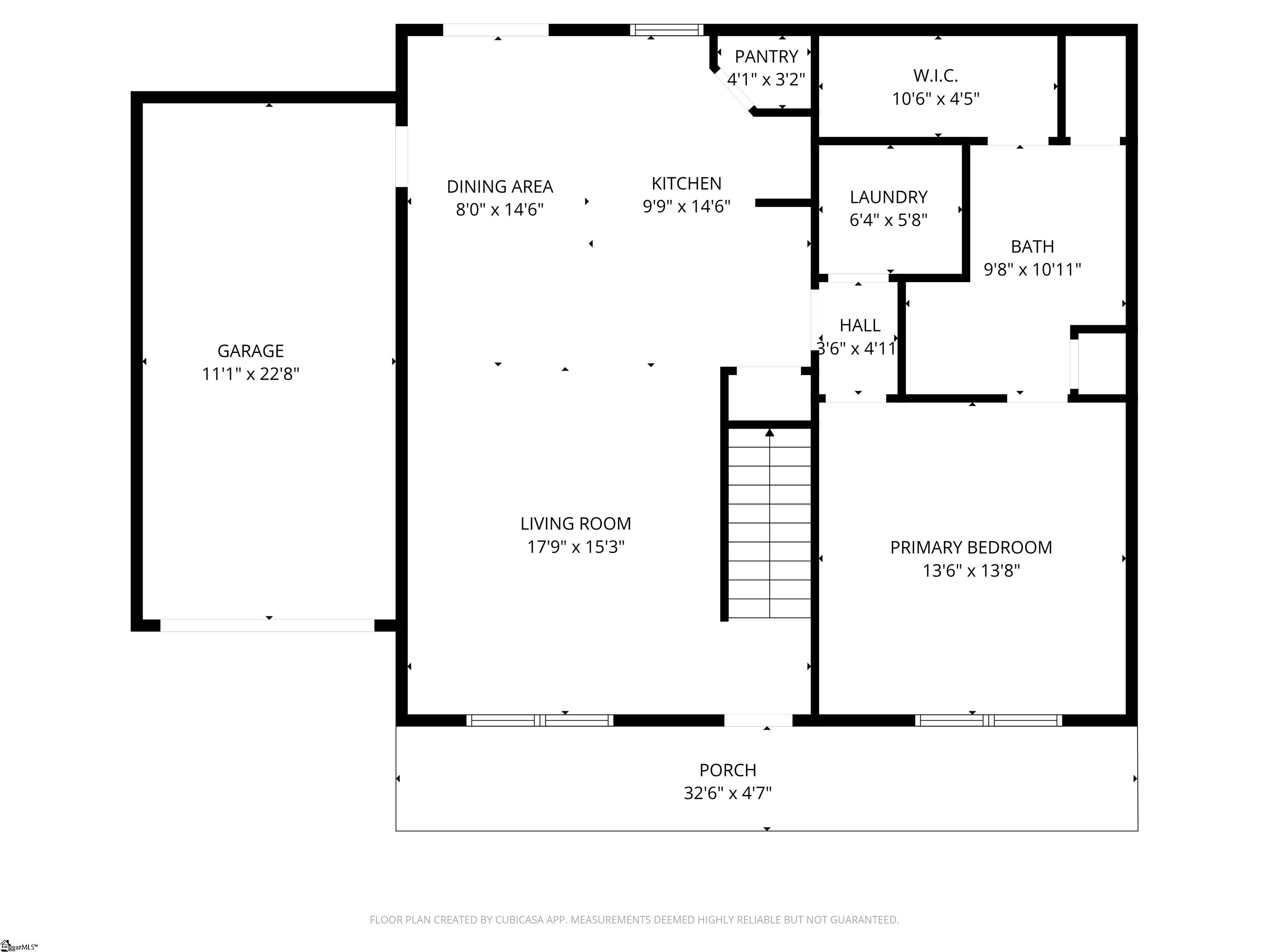
Brand new construction home in progress in Taylors, situated on a spacious 0.85-acre lot in a USDA-eligible area. The home has moved beyond framing, with the drywall phase now complete and construction continuing toward completion. This is an excellent opportunity to secure new construction as the build progresses. Contact the listing agent for current build status and remaining timelines. Designed with a Cape Cod–inspired exterior and a modern, functional layout, this home will feature energy-efficient systems, quality construction, and a layout suited for comfortable everyday living once complete. The location offers outstanding convenience throughout the Upstate. Downtown Greenville and Downtown Greer are each approximately 15 minutes away. Hampton Village Shopping Center, featuring Publix, Chick-fil-A, and additional retail and dining, is just 10 minutes away. Cherrydale shopping and dining are only minutes away, Pebble Creek Golf Course is nearby, and Walmart is within a short 15-minute drive. With Taylors continuing to grow and develop, this property provides both space and accessibility in a highly desirable area. Located in a USDA-eligible area, the home may qualify for zero-down financing for eligible buyers. If you have been searching for a new construction home on a large lot while remaining close to Greenville and Greer, this is a strong opportunity. Reach out today for a site visit or updated construction details.
| yesterday | Listing updated with changes from the MLS® | |
| a month ago | Listing first seen on site |
Listing information is provided by Participants of the Greater Greenville Association of Realtors. IDX information is provided exclusively for personal, non-commercial use, and may not be used for any purpose other than to identify prospective properties consumers may be interested in purchasing. Information is deemed reliable but not guaranteed. Copyright 2026, Greater Greenville Association of Realtors.
Last checked: 2026-01-09 08:03 AM UTC

Did you know? You can invite friends and family to your search. They can join your search, rate and discuss listings with you.